Как разработать план этажа ресторана [Примеры и советы]
Хотите создать отличный план этажа для своего ресторана?
Многие решающие факторы делают ресторан успешным. Хорошо продуманный план этажа определенно входит в этот список.
В этой статье кратко рассказывается о том, что такое поэтажный план и зачем он вам нужен. Затем мы научим вас спроектировать план этажа ресторана, используя множество практических примеров.
Что такое план этажа ресторана?
План этажа ресторана — это карта комнат в вашем помещении, сопровождаемая мебелью и другими элементами. Это включает в себя зону ожидания, столовую, кухню, кладовую, туалет, бар, POS-терминалы, зону для персонала и т. Д. План этажа ресторана поможет вам расположить все элементы в правильном порядке и максимально увеличить пространство.
Очень важно проложить пути для плавного передвижения сотрудников и гостей. Устройте стол так, чтобы гости чувствовали себя комфортно и чувствовали себя уединенно.
План этажа ресторана дает представление обо всем вашем пространстве. Это может дать вам представление о том, как наилучшим образом использовать ваше пространство, а также проложить пути для удобного передвижения клиентов и сотрудников. Вы всегда можете изменить его, когда есть возможности для улучшения.
Посетители любят уединение во время обеда и меньшее количество столиков. А рестораторам нравится больше прибыли и побольше столов в обеденной зоне. Вы можете решить эту проблему, предлагая разные типы сидений.
Макеты ресторанов и правила безопасности при социальном дистанцировании (после Covid)
Поскольку Covid-19 значительно повлиял на рестораны, чтобы помочь этой отрасли выжить, рестораторам необходимо принять некоторые меры. Вот несколько важных шагов:
- В ресторанах необходимо соблюдать расстояние между столиками (обычно около 6 футов).
- Было бы лучше, если бы вы предложили варианты на вынос
- Разрешить гостям заказывать еду заранее, чтобы не ждать
- Если возможно, сделайте перегородки между столами, когда столы слишком близко
- Ограничьте количество людей за столом
- Предлагаем сидения на открытом воздухе
- Используйте кредитные карты, а не наличные
- Предоставьте цифровое меню — отсканируйте QR-код, чтобы избежать касания меню сотни раз в течение их жизни.
(Совет: с хорошей POS-системой, такой как Waiterio , ваши сотрудники могут принимать заказы на еду прямо с планшета или смартфона. Это будет гораздо более безопасным вариантом для вашего ресторана.)
3 лучших программного обеспечения для создания плана этажа ресторана
В наши дни, когда появились технологии, позволяющие делать все на вашем телефоне или компьютере, вам не нужны дорогие архитекторы и проектировщики, чтобы нарисовать план этажа вашего ресторана.
Вы можете просто использовать программное обеспечение, проявить творческий подход и внести столько изменений в план этажа вашего ресторана, сколько захотите. Вот некоторые из лучших программ, которые вы можете использовать:
1. CAD PRO
Он используется во всем мире более чем 2,5 миллионами пользователей, но требует определенных навыков и базовых знаний. Он предлагает образцы планов и множество ценных бесплатных функций, но подписка на весь пакет стоит 99,95 $.
2. RoomSketcher
Она более удобна для пользователя, и вам не нужны какие-либо предварительные знания, чтобы начать использовать эту программу. У него есть база с множеством макетов, примеров, 2D, 3D и 360-градусных обзоров и т. Д. Он предлагает бесплатный план с некоторыми необходимыми инструментами и подписку за 49 или 99 долларов.
3. Smartdraw
В нем есть множество шаблонов, которые вы можете использовать, чтобы нарисовать план этажа вашего ресторана. Он совместим как с Windows, так и с Mac. SmartDraw предлагает бесплатную пробную версию по цене 9,99 долларов в месяц.
Планы этажей ресторана с примерами
В зависимости от размера вашего ресторана количество комнат и элементов внутри может быть разным. Вот некоторые из наших предложений и примеров того, как максимально эффективно использовать ваше пространство.
1. Обеденная зона
Столовая — самая важная часть плана ресторана, и она должна занимать большую часть пространства в вашем ресторане (60% — 40% общей площади ресторана).
Обеденная зона приносит деньги, поэтому она должна предлагать гостям вашего ресторана отличный отдых. Остальные 40% — это площадь BOH; комната для персонала, кладовая и кухня.
Как уже упоминалось, расстояние между столами важно, потому что людям нравится уединение во время обеда. Освещение и музыка, цвета стен и мебели, удобство кресел — вот элементы, которые влияют на общее впечатление и атмосферу.
В зависимости от вашей концепции вы расположите все эти элементы так, чтобы они хорошо сочетались друг с другом, и сохраните их таким образом; это будет ваш товарный знак. Вы можете поставить картину или вывеску или украсить одну стену, чтобы она была уникальной и впечатляющей. Таким образом, люди смогут сфотографировать ваш ресторан и поделиться ими в социальных сетях. Это сделает ваш ресторан популярным.
Насколько большой должна быть обеденная зона?
Форма и размер вашего стула и столов могут повлиять на использование пространства в вашем ресторане.
Тем не менее, вы можете смешивать разные стили рассадки в своем ресторане, чтобы максимально использовать имеющееся у вас пространство.
Расположите свои столы так, чтобы официанты могли легко пройти и подойти к каждому столику, не беспокоя гостей за столиками вокруг. Установите боковые столики в каждой зоне, где официанты могут временно хранить дополнительные столовые приборы и тарелки. Это делается для того, чтобы не бегать по столовой, что может причинить дискомфорт гостям во время еды.
Для деловых людей, любящих уединение, хорошо иметь изолированную территорию. Пара сидячих мест у бара обязательна; некоторым нравится просто сидеть в баре.
Но бар можно использовать и как зону ожидания. В этом случае используйте столы на двоих, четырех или шести человек. Вы также можете разместить столы сообщества, которые становятся очень популярными. Предположим, есть широкий выбор мест для сидения; он предоставит гостям различные варианты, в которых они будут чувствовать себя комфортно.
Кроме того, при расстановке столов учитывайте людей с ограниченными возможностями.
Кредиты изображений: CAD PRO
2. Кухня ресторана
Посмотрите на поток еды и разные станции на кухне. На кухне у вас есть зона для приготовления пищи, инвентарь и кладовая. Рабочее место или место приготовления должно быть в центре, чтобы повара и персонал могли смотреть друг на друга.
Такое расположение предотвратит столкновение сотрудников друг с другом во время работы. Таким образом поток еды становится более плавным и эффективным. Это сводит к минимуму вероятность несчастных случаев на кухне.
Кредиты изображений: smartdraw
3. Зона ожидания
Разрабатывая план этажа ресторана, не упускайте из виду зону ожидания. Зал ожидания — это место, где ваши гости ждут, прежде чем их можно будет рассадить в ресторане. Это довольно неудобно и расстраивает клиентов.
Поэтому самое меньшее, что вы можете сделать, — это предоставить им удобные стулья и барные столики, вместо того, чтобы заставлять их стоять и блокировать путь к входу в ресторан.
Другой вариант помимо зоны ожидания — предложить клиентам места в баре, если там достаточно места.
4. Обеденная зона на открытом воздухе
Огромным преимуществом ресторана является наличие обеденной зоны на открытом воздухе. Он отлично подходит для дней с хорошей погодой. Он также подходит для решения проблем и ограничений COVID19.
Обеденная зона на открытом воздухе должна быть продолжением вашей обеденной зоны внутри, чтобы повысить эффективность передвижения официантов. Это также помогает официантам хорошо видеть открытую площадку. Идеальный сценарий — это территория, ориентированная на сад; это эстетично и дает вашим посетителям уединение и комфорт. Кроме ухода за садом, здесь особо нечего делать.
Если ваша обеденная зона на открытом воздухе выходит на улицу с частым движением и людьми, необходим какой-то барьер, чтобы изолировать обеденную зону от внешней суеты.
Сделать это можно, накрыв территорию стеклом или построив какую-то платформу с забором вокруг.
Кредиты изображений: Cad Pro
5. План этажа бара.
Делая план этажа ресторана для секции бара, постарайтесь максимально увеличить вместимость бара. Как уже упоминалось, некоторым гостям нравится сидеть в баре, но ваш бар также может интерпретировать зону ожидания, если у вас ее нет.
Массивные барные стойки и удобные барные стулья создают отличный имидж и способствуют расслабляющей атмосфере. Барную стойку и зоны отдыха следует располагать так, чтобы гости не смотрели на остальную часть обеденной зоны.
В баре обычно подают только напитки. Поэтому гостей часто обслуживают только бармены. Бывают случаи, когда в барах тоже подают еду, но официанты в большинстве случаев сосредоточены только в обеденной зоне.
Может показаться, что прямые и квадратные стержни занимают больше места, но вы можете использовать их полностью.
Изображение предоставлено: Senaterace
6. План туалета
Убедитесь, что на плане вашего ресторана есть четкое расположение и указатели, чтобы гости не бродили вокруг. Таким образом, они не войдут в служебные помещения и не будут постоянно спрашивать официантов. Туалеты должны быть легко доступны из обеденной зоны, но все же достаточно далеко от столовой, потому что никто не хочет сидеть рядом с уборной. Не ставьте столы рядом с входом в туалет.
Туалеты должны быть чистыми, в хорошем состоянии и должны быть разделены на женщин и мужчин; это оказывает значительное влияние на общее впечатление гостя от ванной. Хорошее обслуживание и приличное место в вашем туалете — существенное преимущество.
Предлагайте дополнительные товары, такие как средства для чистки обуви, прокладки, дезодоранты, сладости или что-нибудь, что гости могут приготовить сами; детали соблюдаются и влияют на общее впечатление гостя.
Есть одна каюта для гостей с ограниченными физическими возможностями.
Кредиты изображений — smartdraw
7. Вход
Вход важен, так как он производит первое впечатление. Ваш вход должен привлекать людей, а не только тех, кто специально приходит в ваш ресторан. Поэтому фасад должен быть аутентичным и привлекательным, чтобы привлекать людей, идущих по улице.
Как и в обеденной зоне, вход должен создавать ощущение чистоты, спокойствия и тепла. Разместите хозяина, который тепло встретит каждого гостя и проводит к доступным столикам.
Планировка зависит от общей концепции вашего ресторана, но людям нравится привлекательная и простая планировка.
Разместите свое меню перед входом, чтобы потенциальные посетители могли показать, что вы предлагаете. Таким образом, вы заставите их остановиться на некоторое время перед вашим рестораном, прежде чем решите войти. Если возможно, найдите хозяина, который поможет им ознакомиться с меню и представить предложение ресторана, но только если они увидят интерес к потенциальным клиенты для вашего ресторана.
Стоять впереди и «кричать» на гостей, чтобы они пришли в ваш ресторан, может быть довольно раздражающим и отталкивающим. Обычно его можно найти в туристических районах, где все рестораны предлагают примерно то же самое.
Создайте небольшую приемную, где вы можете поприветствовать гостя и снять его пальто. Вход должен быть на уровне улицы или на одну-две ступеньки до главной двери. Входы, где лестница ведет вниз под уровень улицы в подвалы, не совсем видны и доступны.
8. Аварийные выходы.
Планируя аварийные выходы на плане этажа ресторана, нанесите на карту все выходы, которые у вас есть. Затем вы должны сделать их видимыми для всех. Знаки выхода в процессе эвакуации очень помогают быстро и эффективно опустошить ресторан.
Обычно эти аварийные выходы вообще не используются, поэтому сотрудники используют их для других целей, и таким образом они могут заблокировать эти выходы. Обязательно сделайте их понятными и проходимыми. В каждой комнате ресторана должен быть запасной выход, чтобы никто не попал в ловушку во время аварии.
Также в каждой комнате должен быть огнетушитель.
Будь то выход из окна или двери, он нужен каждой комнате. Обучите своих сотрудников работе в чрезвычайных ситуациях и организуйте пожарные учения, чтобы они могли подготовиться к таким ситуациям.
Кредиты изображений: smartdraw
9. Комната для персонала / Отдельные комнаты
Создавая план этажа ресторана, обязательно сгруппируйте все приватные зоны. Обычно комната для персонала располагается рядом с кухонной зоной или офисом. Убедитесь, что у вас достаточно места, чтобы ваш персонал мог отдыхать во время перерывов.
Планы этажей для небольших ресторанов
Вам нужно проявлять творческий подход в условиях нехватки места и перетаскивать центр внимания со своих недостатков на свои сильные стороны — творчество и то, что вы предлагаете. Рестораны требуют множества разных помещений и элементов. Однако вы можете объединить некоторые комнаты и организовать некоторые комнаты для экономии места.
Если пространство маленькое, убедитесь, что потолки высокие, потому что это делает комнату визуально больше и уютнее.
Вот несколько примеров креативного дизайна небольших ресторанчиков:
- https://www.reddit.com/r/Design/comments/kwz6se/stacked_seating_at_a_restaurant/
- https://www.dominionprint.com/5-small-restaurant-floor-plan-examples-thatll-wow-your-customers/
- https://pinterest.com/pin/294704369358244887/
- https://pinterest.com/pin/540572761525537986/
Вот пример плана этажа небольшого ресторана:
Изображение предоставлено: CAD PRO
6 советов по дизайну плана этажа вашего ресторана
Составить план этажа ресторана непросто, особенно если вы начинаете с самого начала. Вам нужно сделать так много всего, и у вас будет ощущение, что вы не знаете, с чего начать. Это сложный процесс, требующий много времени и времени; однако вот несколько советов, которые могут помочь вам в этом процессе.
- Правило 60:40 для пространства : в идеале персонал в передней части дома (FOH) должен составлять 60% площади вашего ресторана, а задняя часть дома должна составлять 40%.

- Знайте о государственных правилах : перед созданием плана ресторана обязательно уточните у местного правительства все требования, потому что в некоторых случаях вам нужно получить разрешение и представить план.
- Составьте долгосрочные планы : при проектировании ресторана вы должны учитывать свои краткосрочные и долгосрочные планы. Материалы, которые вы хотите использовать, ремонт, который у вас может быть в будущем. Стали бы вы инвестировать в лучшие материалы и избежать ремонта в будущем, или вы построили бы свой ресторан шаг за шагом, работая и получая прибыль?
- Изучите свой ресторан с точки зрения клиента : создайте для своих гостей незабываемые впечатления, но при этом сосредоточьтесь на эффективности и снижении затрат. В процессе проектирования поставьте себя на место гостя и посмотрите на свое пространство глазами гостя, чтобы увидеть, чего не хватает или что можно улучшить.
- Эффективность имеет решающее значение : эффективный рабочий процесс важен, чтобы предоставить обслуживающему персоналу свободный путь от обеденной зоны до кухни.
Функциональность должна быть предпочтительнее эстетики. - Доступность : сделайте ресторан доступным для каждого из ваших гостей. Добавьте место для инвалидных колясок рядом с лестницей.
Схема, планировка и чертеж Ресторана, Кафе, Бара
TelegramWhatsAppPhoneЗаказать дизайн…
15 кв.м.
Схема фудкорта на 15 кв.м. с открытой кухнейЗона кухни 10 кв.м. и небольшой склад с мокрой зоной. В зале на 5 кв.м. предусмотрено 2 посадочных места с высокими барными столешницами.
Istanbul Kebab — турецкая кухня
г. Москва, Ленинградский проспект 62с26
25 кв.м.
Планировка фудкорта 25 кв.м.Вытянутое узкое помещение с длиной изогнутой столешницей в 11,5 метров. По периметру раздачи: горячие блюда, салаты, выпечка, десерты, напитки и кассовая зона. Не высокие потолки 2,3 метра и фасад в восточном стиле.
Istanbul Kebab — турецкая кухня
г. Москва, Рождественский бульвар 1, Центральный рынок, 2ой этаж
от 30 до 50 кв.м.
Планировка корнера 30 кв.м. на 12 местПрямоугольное помещение с Г-образной барной стойкой по периметру. Корнер на 12 посадочных мест. По центру кухни стена с логотипом, которая скрывает часть мокрой зоны. Возле кассовой зоны аквариум с морепродуктами.
BlueFin — премиальная японская кухня
г. Москва, улица Тимура Фрунзе 11с13
Квадратное помещение 5 на 6 метров, есть две зоны кухни разделенные ГКЛВ перегородкой. За стеклянной перегородкой барная столешница под посадочные места.
POKE’Sushi — азиатская кухня
МО, Ленинский район, МКАД 24-й километр, ТРЦ «Вегас», зона «Food Bazaar»
м. на 14 местПрямоугольное вытянутое помещение с барной стойкой, отдельным залом и не большим санузлом. Эргономика расстановки мебели выполнена с учетом комфортного расположение посадочных мест в 2,5 кв.м. на 1 посетителя.
HaruCha — бабл ти Кафе
119311, г. Москва, проспект Вернадского 9/10
Помещение не правильной формы с закругленной зоной раздачи. Кухонная зона разделена на 2 части, есть окно выдачи блюд, кассовая зона, горячий и холодный цех, мокрая зона и зона холодильных камер.
RollWok club — суши роллы
МО, Одинцовский район, Хорошёвский проезд 14, ТРЦ «VEGAS Кунцево», 3 этаж
Полукруглое помещение. Кухня бургерной в 35 кв.м. с островным оборудованием, раздевалкой для персонала и складским помещением.
Зал в 17 кв.м. рассчитан на 12 мест с круглыми столиками и диванной зоной. На 1 человека 1,5 кв.м.
Cheezy doner&burgers — бургерная
г. Калининград, Театральная улица 30, территория ТЦ «Европа»
Чертеж Бара для Новикова. Общая зона с барной стойкой и лестницей в подвал. Зал №2 с максимальным количеством мест для 18 посетителей.
Камчатка — пивбар
г. Москва, улица Кузнецкий мост 7
Планировочное решение островной стойки с круглыми столиками. Количество мест: 135 + 8 барных за стойкой. 2 кв.м. на 1 человека, включая широкие проходы и комфортное расположение.
Ким Рамён — корейская кухня
МО, г. Котельники, 1ый Покровский проезд 1, ТРЦ «МЕГА» Белая Дача, зона «Мезонин»
60 кв.
м.
Помещение делится на 2 части: зона бара, мойка и посадочные места, 2ая часть — магазин с санузлами и гардеробной для персонала. В зоне магазина располагаются стеллажи и холодильные витрины с продукцией.
Кафе-магазин Novogorsk Daily
МО, г. Химки, микрорайон Новогорск, улица Заречная 6к1
90 кв.м.
Планировка Бара 90 кв.м. с высоким потолком и 2ым уровнемВысота потолков 5,7 метра: 1ый этаж 2,5 метра, 2ой этаж высотой 3 метра. Проход на кухню находится под лестницей, так же есть отдельное помещение мокрой зоны и отдельный санузел для персонала. Общее количество посадочных мест 32 чел.
Green Pub — пивной бар
г. Москва, улица Корабельная 13
Общая площадь Зала 65 кв.м.
, площадь кухни 25 кв.м. В ресторане предусмотрена детская игровая зона, небольшая стойка раздачи и санузел. Столы на 2 чел. 750 на 750 мм., столы на 4 чел. размером 1200х750 мм.
Sushi Factory — сеть ресторанов японской кухни
Узбекистан, г. Фергана, улица Бурхониддина Аль-Маргинони 17А
Планировка Бара с мебелью. Плотность посадочных мест 1,1 кв.м. на 1 человека. Такая максимальная рассадка благодаря высоким столешницам и расстановки диванов вдоль стены для размещения больших компаний.
УЕ!БАР
г. Москва улица Сретенка, 26/1
от 100 до 200 кв.м.
Схема пиццерии 100 кв.м. на 43 местаСхема расстановки мебели в пиццерии Домино’с Пицца. Открытая кухня с барной столешницей. Есть мягкая мебель и высокая посадка. Небольшой санузел и зона ожидания заказа.
Домино’с Пицца
г. Москва, улица Декабристов 10к2
2 разных Зала, барная стойка, закрытая зона Кухни, горячий цех и моечная. Всего 50 посадочных мест, а так же стоячие места у окна с высокой столешницей. Восточная кухня с мангалом и шаурмой.
Кафе «Хочу Шашлык»
г. Москва, улица Болотниковская 12, Москворецкий рынок
В общем зале пиццерии 70 кв.м. предусмотрено максимальное количество в 47 посадочных мест. На 1 человека 1,5 метра. Основные столы на 2 и 4 чел. с возможностью их сдвинуть для больших кампаний до 6-8 чел. Детская комната в 18 кв.м. находится отдельно от основного зала за стеклянной перегородкой и имеет хорошую звукоизоляцию.
Мастер Пицца
Кемеровская область, г.
Белово, Юбилейная улица 10
Интерьер разделен на 2 части: основной Зал №1 с отдельным входом с улицы и Зал №2 с не контактной барной стойкой и санузлами. Общее количество посадочных мест 68 человек. 1,7 кв.м. на 1 посетителя.
Istanbul Kebab — турецкая кухня
105187, г. Москва, улица Щербаковская 57А
Помещение разделено на 2 части: Пивной магазин в 45 кв.м. и Зал 67 кв.м. с посадочными местами и открытой кухней. Есть большая холодильная камера для кег, зоны с ТВ для просмотра матчей, длинная барная стойка с кранами и отдельное место для игровой зоны. Общее количество мест: 33 чел.
Пивной Бар «Возьму Своё»
г. Москва, улица Широкая 27
Схема расстановки мебели в Караоке на 58 посадочных мест с небольшой сценой 7 кв.
м. и отдельными круглыми кабинками, которые располагаются на подиуме.
Кафе Караоке
Якутия, Республика Саха, г. Нерюнгри, улица Южно-Якутская 12
48 посадочных мест с небольшим детским уголком. В интерьере есть 2 санузла: гостевой и для персонала. Отдельное офисное помещения для директора в 18 кв.м. Планировка выполнена из расчета 2 кв.м. на 1 человека.
Pizza House — пиццерия
Свердловская область, г. Серов, улица Ленина 183
Площадь зала 100 кв.м., площадь кухни 30 кв.м. Контактная столешница с видом на открытую кухню. Все столы размером 700 на 650 мм. с возможностью сдвигать их для больших кампаний до 12-15 посетителей. Общее количество посадочных мест: 58 чел.
Kabuki lounge&cafe — японская кухня
г.
Москва, ул. Земляной Вал 33, ТРЦ «Атриум», помещение №3.57
Комфортные столы 800 на 800 мм. и 1400 на 800 мм., отдельные зоны. Длинная 6 метровая барная стойка и эргономичное помещение. Общее количество посадочных мест: 75
Кафе в БЦ «МонАрх»
г. Москва, Ленинградский проспект 31А стр.1, БЦ «МонАрх»
План-схема расстановки мебели винного Ресторана. Большая и просторная входная зона с гардеробом, 2 отдельных зала: Зал №1 с барной стойкой, Зал №2 с большим круглым дегустационным столом на 10 чел. и небольшой сценой. 3 отдельных санузла и второй выход на летнюю веранду. Общее количество мест 55: на 1 человека 2 кв.м.
Вино и Сосны — винный ресторан
Россия, Владимирская область
м. с расстановкой под банкет1ый вариант — это ежедневная рабочая расстановка в 61 посадочное место, 2ой вариант планировки — трансформация под банкетный зал, любое мероприятие до 40 человек. Все кашпо с растениями мобильные и передвижные, диваны встают вдоль окна.
Ресторан Нежный бульдог
г. Иркутск, бульвар Гагарина 11, 2ой этаж
Полукруглое двухэтажное помещение с панорамным остеклением. Большой танцпол на 1 этаже с диванной зоной и лаундж пространство в зале второго этажа. Общее количество 49 мест можно увеличить до 73.
Бар Trap City
г. Москва, улица Покрышкина 4, ТЦ «Звездочка»
Барная стойка 15 кв.м. с 10 барными стульями. Комбинированные квадратные и круглые столы.
Небольшая стойка для диджея 2 на 1 метр, гардероб и 3 отдельные кабинки в санузлах. Общая площадь 180 кв.м.
Кафе Камбэй — китайская кухня
Амурская область, г. Благовещенск, улица Октябрьская 209, 1ый этаж
Зонирование помещения Кафе на 4 части по цветовой гамме. Максимально возможная рассадка посетителей при эргономичном размещении мебели. 1,3 кв.м. на 1 человека.
Кафе Камбэй — китайская кухня
Амурская область, г. Благовещенск, улица Октябрьская 209, 2ой этаж
Большие кабинки 22 кв.м. на 12 человек с круглым столом d=2200мм. Отдельная детская комната 26 кв. м.
Кафе Камбэй — китайская кухня
Амурская область, г.
Благовещенск, улица Октябрьская 209, мансардный этаж
200 кв.м.
Схема рассадки Свадьбы на 30 местЗал 80 кв.м. под рассадку свадьбы на 30 мест. Есть второй Зал 130 кв.м. под мероприятия и другие праздники. П-образная расстановка столов. Общая площадь 200 кв.м.
Кафе под банкеты и свадьбы
Московская область
Кафе на 3 этаже здания. Небольшая барная стойка, столы четверки, круглый стол d=120 в нише с окнами. Есть сцена по центру помещения, которая просматривается со всех сторон. Отдельный вход на кухню, для грязной и чистой посуды.
Кафе Арарат
г. Москва, улица Шаболовка 2, этаж 3
Схема ресторана на 2 этажа со вторым светом.
2 санузла. 2 отдельных входа для посетителей и отдельный вход на кухню с улицы. 3 зала: Зал №1, Зал №2 и Зал на 2ом этаже. Столы двойки 80 на 80, четверки 140 на 80, столы на 6 человек 180 на 80. 65 посадочных мест.
Ресторан на Коломенской
г. Москва, улица Корабельная 17
При входе в помещение большой аквариум и фитостена. Встроенная гриль в столах и вытяжка над каждой жаровней. Открытая кухня и зона бара. Есть отдельная Вип комната за стеклом 16 кв.м. с круглым столом на 8 человек.
Ресторан Кикухана — паназиатская кухня
г. Москва, Аминьевское шоссе 6, МФК «Квартал»
Отдельно стоящее здание в парке. Общий Зал 40 кв.м. Есть 2 крытые веранды по 25 и 50 кв.
м. и одна открытая летняя на 24 места. Планировка на 84 места.
Кафе Панда
МО, Одинцовский район, Мещерский парк
Подвальное помещение без окон. Общая площадь 220 кв.м. По центру помещения барная стойка на 20 барных стульев, которая объединяет 2 зала. Небольшая сцена 2,5 на 1,4 метра и отдельные кабинки для больших компаний.
Ирландский Паб
г. Москва, 2-й Донской проезд, 10с2
250 кв.м.
Схема планировки Ресторана Garden в Новосибирске 250 кв.м.Большая кухня с отдельными зонами горячего цеха, холодного цеха, мойки, гардероба и санузла для персонала, офиса и складского помещения. Общий Зал с барной стойкой 110 кв.м. Количество мест: 52
Ресторан Garden
г. Новосибирск, улица Октябрьская 15
Большой ресторан 250 кв.
м, планировка разделена на 5 частей: Основной зал, Малый зал, Барный зал, Вип зал и зона открытой кухни. Две контактные барные стойки 5 и 8 метров в длину. Отдельный Вип зал на комфортное размещение 7 человек. Большой проектор в основном зале и комбинация квадратных и круглых столов для зонирования помещения.
Ресторан Foco
г. Москва, улица Большая Полянка 51а/9
300 кв.м.
Схема бара 300 кв.м. на 300 мест с отдельными заламиСхема пивного бара с максимальным количеством посадочных мест. Общее количество: 304 места. Метраж 300 кв.м. При такой рассадке, ширина большинства столов довольно комфортная 80 см. Плотность: на 1 чел. 1 кв.м.
БирХаус — сеть пивных ресторанов
г. Москва, улица Бакунинская 7с5
450 кв.м.
Чертеж Ресторана 450 кв.
м. на 150 мест с открытой кухней и каминомБольшая открытая кухня на 40 кв.м., длинный Г-образный бар 15 кв.м., Кальянный зал 130 кв.м., Караоке зал 75 кв.м., Детская комната 8 кв.м., Банкетный зал 85 кв.м. с камином и 4 кабинки санузлов. Чертеж ресторана 3 кв.м. на 1 человека
Ресторан ЖARkA — грузинская кухня
г. Москва, проезд Дежнева 23к2
от 500 до 1000 кв.м.
Чертеж Бара №1 и Ресторана История 500 кв.м. с летней верандойОсновной зал с танцполом и круглыми столами, Барная стойка 30 кв.м., Сцена 20 кв.м., Островная кухня и летняя Веранда 150 кв.м. Два отдельных входа с парадной лестницей.
Ресторан История и Бар №1
МО, г. Истра, улица 9ой Гвардейской Дивизии 9к3
Круглые столы d=150см. на 8 человек для проведения мероприятий, Сцена 20 кв.
м., 2 Вип зала на 16-18 мест, 2ой этаж с детской зоной. Всего в кафе 310 посадочных мест.
Кафе Суханово Парк
МО, Ленинский район, д. Суханово, КП «Суханово Парк»
План кафе на 80 мест. С лаунж зоной и подвесными креслами. Есть игровая зона, большая кухня и полукруглая барная стойка. Овальные формы привязаны к существующему потолку, справа 2 выхода в открытый бассейн. Вся мебель из искусственного ротанга.
Бар Пляж в ТРЦ «Мармелад»
г. Великий Новгород, улица Ломоносова 29
Общая площадь Ресторана 520 кв.м. Помещения: гардеробная, зона еды на вынос, 2 банкетных зала по 38 мест на 42 кв.м., отдельная игровая комната для детей, 9 кабинок с круглыми столами на 12, 14 и 16 человек, 4 разных зон с посадочными местами.
Ресторан Будда — китайская кухня
Амурская область, г. Благовещенск, улица Калинина 127
Общая площадь Кафе 540 кв.м. Панорамное остекление в основном зале, отдельный мини-офис для Кафе, зона Раздачи блюд 100 кв.м. и Кухня 120 кв.м. Комбинированные круглые и квадратные столы четверки. Можно разместить большое кампании. Предназначено для столовой компании Яндекс.
Столовая для компании Яндекс
г. Москва, 1-й Красногвардейский проезд 21с1, Москва Сити, Башня «Око», 3ий этаж
Схема летней веранды вытянутой формы на территории Жилового комплекса. Два 40 футовых контейнера для кухни. Большая зона барной стоки и уличная мебель с озеленением и зонтами.
BlueFin — летняя веранда
г.
Москва, ЗАО, Раменки, ЖК «Воробьёвы Горы»
50 метровая линия раздачи. Площадь общего зала 320 квадратных метров. Столы двойки, четверки, на 6 и 8 человек. Подвальное помещение с небольшими окнами, вход с территории бизнес центра. 2 отдельных выхода с кухни, вход для персонала и зона погрузки/загрузки. Общая площадь кухни 280 метров.
Буфет Снеди-Феди
г. Москва, улица Льва Толстого 16
Схема планировки столовой с линией раздачи: Салаты, Супы, Пицца, Горячие блюда, Гарниры, Выпечка, Десерты, Кассовая зона и Напитки. Большая кухня с расстановкой оборудования, горячим и холодным цехом, заготовочным цехом, мучной цех, мокрая зона с душевыми и открытая пицца печь в зоне раздачи. Всего 180 посадочных мест.
Столовая Снеди-Феди
г.
Москва, улица Электрозаводская 27с8, БЦ «Лефорт»
Зона фудкортов с расстановкой мебели и вторым светом. Есть большая детская игровая зона и 7 отдельных подиумов овальных форм в футуристическом стиле. В качестве декора много кашпо, зелени и искусственных растений.
Зона фудкортов в ТЦ
г. Вологда, Пошехонское шоссе 22, ТЦ «Мармелад»
1500 кв.м.
Схема Детского игрового центра 1500 кв.м. с кафе лаунж зонойДвухэтажный игровой центр с игровой зоной 900 кв.м., 3 лаундж зоны, Банкетный Зал на 30-36 человек, Зал для шой программ, Кафе с барной стойкой и Балконами по 50 кв.м. В Кафе детского центра 250-300 посадочных мест.
Класс! Парк — детский игровой центр
г. Иркутск, улица Сергеева 3/3А
Комментарий от Дизайнера:
«Если Вам необходимо сделать план-схему или планировочное решение с расстановкой мебели для общепита — обращайтесь! Проконсультируем, поможем, подскажем.
«
Конев Сергей
Арт Директор
Москва
Адрес: 127051, г.Москва, Цветной бульвар 30с1
Телефон: +7 (915) 100-70-10
Краснодар
Адрес: 350053, г.Краснодар, улица Баварская 8
Телефон: +7 (918) 100-70-10
www.VIPDesigner.ru E-mail: [email protected]
© 2008–2022 VIPDESIGNER GROUP — Дизайн Интерьера
Концепция ресторана, проект кухни ресторана, форматы ресторанов, разработка меню
Проработайте концепцию ресторана. Сохраните свое время и бюджет!
Если вы следите за нашим Instagram @restoranpp, то вы наверняка уже поняли, что концепция представляет из себя общую картину ресторана, в которую входит интерьер, музыкальное сопровождение, меню, цены и многое другое.
В основу концепции ресторана всегда необходимо закладывать коммерческую составляющую, и уже от неё отталкиваться.
Что это значит?
Например у вас есть инвестор или вы являетесь инвестором, который готов вложиться в создании нового ресторана.
У вас есть бюджет, за пределы, которого вы конечно же не хотите выйти, поэтому вам необходима правильно проработанная концепция, которая даст понять, уложитесь вы в него или нет.
Первое, что вы делаете, это определяете целевую аудиторию, понимаете какие блюда у данной аудитории будут популярны и начинайте составлять меню.
На данном этапе меню не требует тщательной проработки дизайна и названий блюд, вы можете составить не сложный список с общими названиями, например супы: Борщ мясной, Том-Ям на рыбном бульоне, Уха из семги, вам надо только дать некоторые уточняющие характеристики, то есть Борщ может быть вегетарианский, а может быть мясной, Том-Ям может быть на рыбном бульоне, а может быть на курином, данное небольшое уточнение необходимо, чтобы технолог в процессе разработки концепции и подбора оборудования смог понять, что ему необходимо учесть.
Если блюдо сложносоставное из многих ингредиентов и требует дифростацию, прожарку, запекание, включает в себя холодные закуски, то состав блюда необходимо указывать более точно.
Производительность ресторана
- Какая должна быть ожидаемая выручка в месяц?
- Сколько посетителей должен обслуживать ресторан в пиковые нагрузки?
- Какое количество, каких именно блюд должен производить ресторан?
На все эти вопросы необходимо ответить, чтобы определить производительность ресторана.
В первую очередь вы открываете ресторан для того, чтобы получить коммерческую выгоду, следовательно вам необходимо знать какие затраты несёт ресторан и сколько необходимо выручки, чтобы покрыть расходы и остаться в плюсе.
Исходя из этого, вы можете понять сколько обязательно вам необходимо посетителей и сколько они должны заказать блюд в месяц.
Полученный объем нельзя будет разделить на количество дней в месяце и получить результат за день, ведь в разные дни, разная посещаемость.
Поэтому важно учесть всего лишь один день, представить его, когда у вас полностью занята вся посадка в зале + на веранде + посетители приходят и берут только еду на вынос + доставка работает очень активно.
Учитываем все ожидания, в дальнейшем предпринимаем меры, чтобы их реализовать.
Исходя из рынка, выручка доставки еды из ресторана обычно составляет до 15%. Летнюю веранду учитываем отдельно от основного зала, в зависимости от площади и количества посадочных мест.
Еда на вынос, например пицца. Небольшой процент, примерно 5% мощности также нужно заложить.
Первые 2 месяца идет настройка работы ресторана по популярным блюдам и количества заказов среди аудитории, ведь основную выручку делают именно они.
Мы составили примерное меню для нашего будущего ресторана «QUSNO»:
Супы:
- Борщ мясной
- Лапша куриная
- Суп из белых грибов
- Том-ям
- Уха из семги
- Пельмени деревенские
Жареное мясо и рыба:
- Рибай
- Нью-Йорк
- Филе миньон
- Томагавк
- Мясные колбасы
Гарниры:
- Крупа гречневая
- Рис
- Нут
- Картофельное пюре (традиционное)
- Картофельное пюре с зеленью
- Картофель печеный
- Овощи гриль
- Овощное рагу
- Брокколи
- Цветная капуста
Салаты и холодные закуски:
- Цезарь с курицей / креветкой / лососем
- Салат с ростбифом
- Греческий салат
- Салат с печеной свеклой и сыром фета (авторский)
- Салат с апельсином и авокадо
- Салат «Капрезе»
- Нарезка из свежих овощей
- Микрозелень
- «Подбери свой салат»
Рыбные блюда:
- Стейк из лосося
- Сибас
- Дорадо
- Устрицы
- Креветки
Пицца:
- Пепперони
- Прошуто
- Маргарита
- Четыре сыра
- Кольцоне
Десерты:
- Мороженное
- Панакота
- Наполеон
- Пироженное «Паволова»
- Торт «Прага»
- Мельфей
- Царский (поменять название)
- Фруктовый салат
- «Фламбе»
Хлебная продукция:
- Хлебцы с отрубями
- Пита
Прохладительные напитки:
- Соки свежевыжатые
- Коктейли безалкогольные
- Кола/фанта/спрайт
- Вода
- Вода с фруктовым соком (детокс)
Горячие напитки:
- кофе капучино
- кофе латте
- кофе раф
- кофе гляссе
- кофе флэт уайт
- кофе на соевом молоке
- кофе на кокосовом молоке
- чай зеленый
- чай черный
- чай с бергамотом
- чай с мятой
- чай с лимоном
- алтайский чай микс
Винная карта:
- вино к мясу
- вино к рыбе
- глинтвейн
- водка
- коньяк
- вермуты
- коктейли
Конечно же это меню не является финальным и в него будут вноситься ещё изменения, но этого уже достаточно.
Если у вас возникнут трудности в составлении подобного списка меню, то вы можете написать нашим специалистам в директ @restoranpp или задать вопрос в личном кабинете на сайте.
Кто ещё не знает, у нас функционирует клуб, для тех, кто хочет еще больше изучить тему открытия ресторана, кафе, доставки еды и узнать о нововведениях.
На сайте вы можете пройти по кнопке «подписаться», оставить свою почту и мы вас добавим в наш клуб. Пока он только открылся, вступление бесплатно!
Вы получите доступ к закрытой информации и у вас появится хорошая возможность познакомиться ближе с сегментом HORECA из c её представителями.
Продолжим…
После того, как меню составлено можно начать определение и подбор основного технологического оборудования для кухонной зоны ресторана.
Если в меню имеются холодные закуски и горячие блюда, значит в ресторане будут присутствовать горячий и холодный цех, для мучных изделий цех подготовки и замеса теста, для приготовления пиццы необходимо отдельное рабочее место и специальная печь для пиццы, а в загатовочном цеху требуется расположить все то оборудование, которое позволит подготовить продукты для приготовления.
Это только основные помещения. В составе зоны кухни, также, часто имеются места для хранения уборочного инвентаря, посудомоечная зона, холодильная камера, морозильное камера, склад, офис, раздевалка, места для установки компрессоров для напитков и другие помещения.
Мы уже сделали примерную планировку зоны кухни для нашей концепции ресторана «QUSNO»:
Вы можете купить данную планировку с оборудованием в формате DWG и PDF.
Данная концепция позволит вам быстро осуществить расстановку оборудования под любое помещение. В планировке собраны все основные производственные цеха, которые выполнены по стандартам и будут удобны для персонала, мы учли все для максимально эффективной работы.
При необходимости мы сможем внести корректировки и адаптировать данную концепцию под ваше помещение.
Каким образом будут осуществляться все технологические процессы, в какой очерёдности, какое оборудование будет использоваться, какое потребление воды у данного оборудования, какое потребрение электроэнергии у кухонного оборудования, всё это определяется разделом проекта «Технологические решения».
Какие бывают форматы ресторанов?
Существует много форматов, которые отличаются между собой площадью и производительностью изготовления блюд, а так же возможностями обслуживания посетителей.
По опыту работы с различными сетями, мы можем отметить то, что есть основные популярные форматы ресторанов:
- Инлайн (кухня с залом и посадочными местами)
- Фудкорт (кухня и стойка раздачи товара без своих посадочных мест)
- Драйв (тоже, что Inline, только добавляется возможность обслуживания клиентов на автомобилях)
- Фри-флоу (кухня, стойки с блюдами для выбора, зал)
- Островок (небольшая открытая кухня и стойка выдачи товара)
- Бар (минимальная кухня и большая барная зона с залом и посадочными местами)
Для наших подписчиков мы предоставляем больше данных, поэтому, если вы хотите подробнее узнать о каждом формате, то подпишитесь и мы откроем вам доступ к закрытой информации на сайте.
В зависимости от того, какая необходима производительность общепита, кухня может быть, как большой, в которой приготавливается все блюда, так и в виде небольшого доготовочного цеха, когда блюда уже готовы(заморожены) и их необходимо только подогреть.
Какой формат общепита необходим именно вам и будет определяться при разработке концепции.
Наиболее полной концепцией ресторана является формат «Drive», чтобы его воспроизвести необходимо наибольшее количество затрат, в связи с этим срок окупаемости сильно увеличивается, поэтому не так много брендов, которые решаются открыть подобные рестораны, а для многих уже существующих брендов, открытие ресторана формата «Drive» не имеет никакого смысла, потому, что изначально данный формат в концепции не учитывался, например есть суп «Фо-бо» в автомобиле не удобно, особенно в пути.
Итог!
В зависимости от того, какой коммерческий результат необходим и будет определяться производительность ресторана, а уже после определяться площадь помещения, количество цехов, мест для хранения, а следовательно и количество оборудования, сколько мест в зале, сколько необходимо мебели, объем строительно-отделочных работ и все это основная часть расходов на открытие ресторана.
В задачи технологического проекта кухни ресторана входят ответы на вопросы, касающиеся расположения помещений в соответствии со всеми существующими нормами ХАССП(HACCP) с учетом соображений удобства и экономии.
Грамотный технологический расчет всех необходимых нюансов помогает избежать лишних затрат, связанных с приобретением оборудования, в котором нет нужды, а так же данный проект способен решить проблему с расстановкой оборудования таким образом, чтобы каждый сантиметр помещения использовался максимально эффективно и безопасно, что конечно коммерчески выгодно, ведь оставшаяся площадь останется на зал.
Тема концепции ресторана сложная, концепция часто меняется, дорабатывается, улучшается, но именно поэтому ей стоит уделить максимум времени и внимания, чтобы задать правильное направление в самом начале создания проекта.
Мы будем дорабатывать данную статью и информировать вас об изменениях, поэтому подпишитесь на наш проект тут и в INSTAGRAM @RESTORANPP и узнаете первыми о всех новостях, и так же вам откроется доступ к закрытой информации на сайте.
А, что же по стоимости концепции? Мы приняли 1000 р./м2 под ключ, максимальная площадь ресторана будет 500 м2 стоимость разработки концепции с меню и 3D-визуализацией зала составит 500 000 р.
Кто-то скажет, зачем создавать концепцию, лучше найти помещение и сделать сразу проекты под него. Для нового бренда общепита, концепция необходима, ее можно сделать под уже найденное помещение, но это исключение из правил.
Про поиск помещения мы рассказали на этапе «Поиск помещения для ресторана: Анализ и оценка помещения».
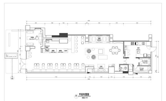
Как спроектировать план ресторана за 7 шагов + примеры
План ресторана — это эскиз пространства вашего ресторана, который включает обеденную зону, кухню, кладовую, ванные комнаты и входы. Лучшие планы этажей ресторана поддерживают операционный рабочий процесс и сообщают клиентам о вашем бренде. В зависимости от типа вашего ресторана, ваша конкретная планировка ресторана будет варьироваться, но разделение 40/60 между кухней и столовой является отраслевым стандартом.
Создание плана помещения — важный шаг к открытию ресторана. В большинстве городов при подаче заявления на получение разрешения на ведение бизнеса вам необходимо будет указать план помещения вашего ресторана. Если вы ищете инвесторов, рекомендуется также включить план помещения в бизнес-план вашего ресторана.
При разработке плана этажа ресторана самое важное, что нужно помнить, это то, что ваша планировка должна позволять проходить через ресторан нескольким элементам. Ваша окончательная планировка ресторана должна учитывать все эти элементы:
- Поток людей: Ваш персонал, клиенты и поставщики
- Поток продукции: Доставка продуктов питания и напитков и продажа продуктов питания и напитков
- Поток коммунальных услуг и информации : Электричество, вода, воздух, информация о заказе и платежные данные
Вот как составить план этажа ресторана за семь шагов:
1. Подсчитайте рабочие площади ресторана
Существует несколько действующих ресторанных площадей, которые нужны каждому ресторану.
Размер каждого из них будет варьироваться в зависимости от стиля вашего ресторана и от того, едят ли клиенты на месте или берут еду с собой.
Основные рабочие зоны на плане ресторана включают:
- Вход и зона ожидания : Ваш вход — это рекламный щит вашего ресторана. Он должен сообщать о вашей концепции и побуждать прохожих войти. Оказавшись внутри, зоны приветствия и ожидания зависят от типа заведения. Для изысканной и непринужденной трапезы эта зона требует серьезного внимания, если у вас есть время ожидания. Для концепций быстрого обслуживания и кафе это пространство может быть минимальным, особенно если у вас есть бар для обслуживания за стойкой. Входы во все рестораны должны соответствовать требованиям Закона об американцах-инвалидах (ADA).
- Обеденные зоны: Обеденные зоны ресторана обычно занимают 60% площади ресторана, чтобы обеспечить достаточное количество сидячих мест и поток посетителей. Однако ресторанам с доставкой или точкам быстрого обслуживания может не понадобиться столько места.
Если вы используете систему точек продаж (POS), вам также необходимо подумать о том, где разместить терминалы в вашей столовой. - Кухня : В большинстве планировок ресторана кухня занимает около 40% вашего пространства. Это может показаться много для места, которое посетители никогда не увидят, но это сердце вашего бизнеса. Кухни также нуждаются в газопроводах, водопроводах, электропроводке, стоках в полу и вентиляционных вытяжках.
- Туалеты : Если вы можете разместить туалеты рядом с кухней, вы можете сэкономить деньги, подключившись к близлежащим водопроводным и водопроводным линиям. В зависимости от размера вашего помещения, рекомендуется также добавить туалет только для персонала. Имейте в виду, что ваши туалеты также должны соответствовать требованиям ADA.
- Входы для доставки и погрузочные доки : В большинстве мест вы не получаете припасы через те же входы, которые используют клиенты. Большие коммерческие здания уже будут иметь погрузочные доки или задние входы для поставок поставщиков.
Если в вашем здании его нет, рекомендуется добавить вход для доставки в ваш ресторан. Вы не хотите, чтобы клиенты ходили вокруг ящиков с овощами, чтобы добраться до стола! - Помещения для персонала и бэк-офис : Большинству ресторанов требуется бэк-офис для хранения конфиденциальной деловой информации, такой как личные дела, налоговые документы, вычислительное оборудование и денежные резервы. Некоторые города также требуют, чтобы работодатели предоставляли места для отдыха для сотрудников. Если у вас есть место, раздевалка для персонала станет отличным дополнением, чтобы ваша команда могла переодеться из уличной одежды в рабочую одежду и надежно хранить свои личные вещи во время работы.
COVID-19 Совет: Обозначение мест для переодевания персонала еще более важно во время COVID-19 . Предоставление вашей команде места для переодевания и надевания средств индивидуальной защиты (СИЗ) поможет вам избежать попадания загрязняющих веществ в ваш ресторан.
Есть также дополнительные области, которые вам нужно будет добавить, в зависимости от концепции вашего ресторана. К ним относятся:
- Бар и стойки обслуживания: Барная зона необходима для ресторанов, предлагающих крепкие коктейли, кофе или соки. Если вы разрешаете размещение клиентов в своем баре, вам необходимо убедиться, что часть бара соответствует требованиям ADA. Деликатесы, суши-шопы и другие рестораны быстрого обслуживания также нуждаются в прилавках или барах. Наличие стоков в полу, электрических и водопроводных линий обычно определяет, где вы можете разместить свой бар или стойку обслуживания.
- Зоны выноса и доставки: Если вы часто занимаетесь вывозом и доставкой, вам следует выделить место для хранения выполненных заказов и обеспечить эффективную выдачу. Рестораны с полным спектром услуг, в которых гости могут поужинать, наряду со службами доставки должны разделять два типа гостей, чтобы поддерживать бизнес.

- Открытые площадки: Не забывайте о открытых площадках! В некоторых ресторанах единственным открытым пространством является главный вход. Но в умеренном климате вам захочется расширить обеденное пространство за счет открытых патио или сидений на тротуаре.
Составьте список всех функциональных помещений, которые нужны вашему ресторану. Подумайте, сколько человек должно одновременно работать или обедать в каждой зоне и как долго они будут занимать пространство. Вы должны запланировать выделение наибольшего пространства на плане помещения для мест, где большинство людей будут собираться в течение наиболее продолжительного периода времени. Обеденные залы в ресторанах с полным спектром услуг, где клиенты тратят два часа на один прием пищи, естественно, будут более значительными, чем в бургерной, где большинство клиентов берут еду на вынос.
2. Рассмотрите пространство, которое у вас есть
Прежде чем вы влюбитесь в конкретную планировку ресторана, вам необходимо определить местонахождение линий электропередач, водопровода, несущих стен и мест, где можно разместить стоки в полу.
Получите копию чертежей местоположения вашего ресторана или проконсультируйтесь с подрядчиком, чтобы определить наиболее подходящие места для вашего кухонного оборудования, туалетов и барного оборудования. Вы также должны связаться со своим арендодателем и местным советом по зонированию, чтобы узнать о любых ограничениях, которые могут повлиять на ваш выбор.
Прежде чем приступить к наброску планировки ресторана, вам необходимо знать следующее:
- Расположение инженерных коммуникаций: Наличие газовых линий, электричества, кабелей Ethernet, телефонных линий и водопроводных линий будет влиять на планировку вашего ресторана. пространство.
- Элементы интерьера, которые нельзя изменить: Возможно, вы не сможете переместить некоторые стены или колонны в пространстве вашего ресторана. Лучше знать, что вы можете и не можете изменить, прежде чем составлять свои планы.
- Ограничения арендодателя: В большинстве коммерческих зданий действуют правила о том, где вы можете получать доставку и куда могут быть обращены входы и выходы.

- Ограничения по зонированию: В первую очередь это касается наружных вывесок и концепций, которые хотят добавить услугу сквозного проезда. Местные постановления могут не разрешать сквозной проезд, или вам могут потребоваться специальные разрешения для сидения на тротуаре и открытых патио. Постановления о зонировании также определяют, где вы можете выводить кухонные испарения и дым.
Совет: начните с существующего ресторана . Реконструкция старого ресторана в соответствии с вашими потребностями стоит намного меньше денег, чем создание нового коммерческого помещения . Найдите специалиста по коммерческой недвижимости с опытом работы в ресторанном бизнесе, который поможет вам найти идеальное место для ресторана для ремонта. Обычно они также могут посоветовать вам кредиты и варианты финансирования.
3. Планировка кухни
Кухня вашего ресторана имеет самые важные технические потребности в любой части вашего ресторана.
Вот почему вы начинаете с кухни. Большинство ресторанов выделяют от 30% до 40% своей общей площади для кухни, чтобы обеспечить достаточное количество места для приготовления пищи, приготовления пищи и размещения официантов. Есть больше, чем просто еда, чтобы рассмотреть.
Кухня ресторана также должна обеспечивать достаточный поток:
- Продуктов питания: Сырые ингредиенты должны поступать на кухню, а приготовленные продукты должны вытекать из кухни.
- Персонал: Персоналу, занимающемуся приготовлением пищи и уборкой, требуется эффективное рабочее место, а обслуживающему персоналу — эффективное место для приема пищи.
- Информация: Поварам необходимо быстро видеть заказы, когда они приходят и уходят с кухни.
- Отходы: Кухонные пары, пар и дым должны выходить из здания. Сточные воды и кулинарный жир также необходимо безопасно утилизировать.
Для обеспечения эффективного рабочего процесса кухне ресторана необходимо:
- Газопроводы: Для питания кухонного оборудования
- Электрические линии: Для питания кухонного и вентиляционного оборудования, холодильников, морозильных камер и POS-оборудования, такого как принтеры и кухонные дисплеи (KDS)
- Водопровод: Для питания посудомоечных машин и моек, специального оборудования для напитков, такого как диспенсеры для безалкогольных напитков и эспрессо-машины, а также спринклерных систем или оборудования для пожаротушения
- Трапы в полу: Для слива воды из холодильников, льдогенераторов, контейнеров для льда и раковин
- Соединения жироуловителей: Для предотвращения попадания кулинарных жиров из сточных вод и кухонного оборудования в канализационные системы общего пользования
После того, как вы выбрали лучшее место в вашем ресторане для установки кухонного оборудования, вы готовы подумать о планировке самой кухни.
В ресторанах используются три основных типа коммерческих кухонь: сборочная линия, остров и зона.
Сборка |
| ||||||||||||||||||||||||||||||||||||||||||||||||||||||||||||||||||||||||
Остров |
| ||||||||||||||||||||||||||||||||||||||||||||||||||||||||||||||||||||||||
Zone |
Присоединяйтесь к сети онлайн! 2ndKitchen сотрудничает с ресторанами, местными барами, пивоварнями, отелями и высотными зданиями, чтобы подавать блюда вашего ресторана клиентам этих предприятий. Руководство по дизайну ресторанаДумаете об открытии ресторана или кафе? Тщательный план помещения ресторана может превратиться в успешное деловое предприятие. План этажа включает в себя больше, чем перестановку столов. Его необходимо тщательно разработать, чтобы упростить работу ресторана. Есть несколько важных элементов, связанных с планом этажа, которые необходимо учитывать при разработке макета вашего места проведения. Составление карты основ планирования этажейПри разработке плана этажа необходимо учитывать следующие элементы:
Чтобы гарантировать, что операции будут осуществляться соответствующим образом, вы можете удостовериться, что задняя часть дома и пространство внутреннего дворика также синхронизированы с планом этажа вашего ресторана. Планировка кухни и туалетаПланировка коммерческой кухни обычно предусматривает 5 отдельных зон для производства еды:
Эта установка специально предназначена для того, чтобы персонал оставался на своих рабочих местах с меньшим количеством перемещений между помещениями. Туалеты должны быть доступны, но расположены вдали от столовой. Дверь туалета, примыкающая к обеденной зоне, создает неудобную ситуацию как для персонала, так и для посетителей. После того, как вы определили кухонное пространство на плане этажа, вы можете подумать о размещении туалета. На схеме вы также можете увидеть типовой план помещения ресторана с неформальной обстановкой, включая расположение кухни и туалета. Он также включает некоторую техническую информацию о правильном расположении островков, кабин, столов и стульев. Количество посадочных мест рассчитывается на основе модуля дизайна ресторана, подробно описанного в нашей статье о расстановке столов в ресторане. Чтобы облегчить работу за кулисами, необходима хорошо спроектированная кухня. Наличие четко определенных рабочих мест для приготовления пищи, уборки и станций обслуживания помогает облегчить хаос на оживленной кухне ресторана. При наличии достаточного пространства рекомендуемая планировка включает кухонный остров, зоны хранения и охлаждения, а также просторные островки, как показано на диаграмме ниже: Выделение основного пространства При рассмотрении основных помещений для плана этажа вашего ресторана общее эмпирическое правило для определения выделенной площади заключается в том, что столовая должна занимать большую часть общего пространства.
Планы этажей и планировки ресторана зависят от типа помещения и используемой ресторанной мебели. Важно отметить, что банкетные сидения могут занимать всего 10 кв. футов на человека, тогда как для изысканной кухни требуется не менее 20 кв. футов на человека. В большинстве ресторанов и кафе распространена средняя площадь около 15 кв. футов на человека. Количество сидячих мест также учитывает пространство, необходимое для станций ожидания и транспортных проходов.
Рекомендации по расстановке мебели в ресторанеДля обеспечения безопасности и обеспечения свободного потока трафика для клиентов и серверов необходимо оставить минимальное пространство для движения трафика между различными предметами мебели. Ниже приведены некоторые рекомендации, которые помогут вам определить идеальное место для сидения и высоту стола, которые следует учитывать:
При планировании планировки и покупке мебели следует помнить, что столы и высота сидений должны соответствовать друг другу:
Патио/обед на открытом воздухе Концепции дизайна интерьера ресторана и планы этажей применимы к патио, если вы планируете его иметь. После того, как вы разработали план ресторана, вы можете сосредоточиться на декоре и типе ресторанной мебели, которую вы хотите использовать для своего заведения. Это во многом зависит от типа вашего заведения и типа клиентуры, которую вы привлекаете. В зависимости от размера ресторана можно рассмотреть множество вариантов меблировки, таких как ресторанные кабинки, столы, стулья или их комбинация, включая обеденные кабинки и столы-кабинки. Потратив время на тщательную разработку плана этажа, следует учитывать доступное пространство, тип ресторана и расположение посадочных мест, чтобы сделать ваш ресторанный бизнес успешным. |


Функциональность должна быть предпочтительнее эстетики.
Если вы используете систему точек продаж (POS), вам также необходимо подумать о том, где разместить терминалы в вашей столовой.
Если в вашем здании его нет, рекомендуется добавить вход для доставки в ваш ресторан. Вы не хотите, чтобы клиенты ходили вокруг ящиков с овощами, чтобы добраться до стола!

Попросите сотрудников пройтись по рабочим процессам, чтобы убедиться, что нет пробок или натертых локтей. Затем вы можете зафиксировать оборудование на месте.
В зависимости от объема вашего бизнеса любой из трех упомянутых выше макетов кухни может подойти для кухни-призрака или облачной кухни.
Смешение стилей столов оптимизирует обеденное пространство, разумно используя пространство на стенах и поддерживая эффективный поток посетителей. Вы можете передвигать отдельно стоящие столы, чтобы разместить большие компании или изменить внешний вид вашего пространства. Кабины максимизируют пространство на стене, а их сочетание со столами дает посетителям возможность выбора места для сидения. Многие обеденные концепции добавляют столы высотой со столешницу, чтобы добавить визуальное разнообразие.
Так что не забудьте включить серверные станции, оснащенные картридерами или POS-терминалами, в макет вашей столовой, не забывая, конечно, размещать эти инструменты рядом с электрическими розетками.
Как и в ваших внутренних помещениях, вам нужно оставить достаточно места на основных улицах, чтобы пропустить инвалидные коляски. И если вы планируете принимать платежи за столом, вам, вероятно, понадобится усилитель сигнала Wi-Fi.
Если это невозможно, вам придется полностью отремонтировать эту область, поэтому тщательно размещайте туалеты. Это не тот элемент, который легко перемещать по пространству. Вам необходимо убедиться, что по крайней мере одна кабинка или один туалет доступны для инвалидных колясок.
Или просто настройте свою дверь так, чтобы она дополняла вывески и концепцию бренда.
Эта стойка обычно является единственным разделением между кухней и обеденной зоной. Счетчикам заказов обычно нужны только электрические розетки и подключение к Интернету для обработки платежей. Многие рестораны также используют эту недвижимость для хранения галантерейных товаров и бумажных принадлежностей под прилавком.
Если ваша программа доставки особенно надежна, имеет смысл, чтобы пункт выдачи находился рядом с вашей кухней или на ней.
Эти области не обязательно должны быть большими, поскольку они не приносят дохода, и в идеале ваша команда не проводит в них долгие часы, — но они должны быть продуманно спроектированы.
В вашем бэк-офисе хранится конфиденциальная информация, такая как документы о найме, налоговая информация и бизнес-лицензии. В нем также хранятся ценные предметы, такие как компьютер для бэк-офиса, концентратор системы безопасности и сейф. Между вашим сейфом и внешним миром всегда должно быть как минимум две запирающиеся двери. Дверь вашего офиса должна быть прочной и закрываться изнутри.
Оба используют доступные материалы для создания временных пространств. Подумайте о своем любимом фермерском рынке и материалах, которые они используют. Имейте в виду, что в приведенной ниже таблице представлены только предложения. Каждый раз, когда вы планируете использовать открытое общественное пространство, вам нужно будет связаться с местными органами зонирования для получения разрешения и рекомендаций.
Используйте бары и столешницы для еды на вынос и доставки.
Вход
Ваши интерьеры в обеденной зоне должны гармонировать с концепцией вашего ресторана и создавать единое целое во всем пространстве.
Ознакомьтесь с лучшими приложениями списка ожидания в 2020 году.
В баре также много сидячих мест, чтобы максимально увеличить количество людей, которые могут сидеть в ресторане.



В приведенном ниже примере уборные расположены возле входа. Это удобно для тех, кто находится в зоне ожидания, или для гостей, которые закончили трапезу и выходят из ресторана.
е. перед домом), а остальные 40 % для кухни, хранения , морозильник и т. д. (например, в задней части дома).
Сосредоточьте свое внимание на аспектах, которые обеспечат отличное обслуживание гостей и повысят эффективность рабочего процесса. Для большинства ресторанов это вход, бар, столовая и кухня.
И это 100% бесплатно!
Освещение также должно учитываться при планировке, так как оно играет решающую роль в создании атмосферы в вашем ресторане. Расположение столиков в ресторане слишком близко к большим источникам света может привести к тому, что ваши посетители получат неприятные блики.
Размещение туалета рядом с кухней (как показано на схеме ниже) может сэкономить вам расходы на сантехнику, привязав его к соседним линиям. Туалеты должны быть просторными, но не тесными, с легко моющимися приспособлениями.
Оставшееся пространство следует отвести под кухню, кладовую и зону подготовки. Эти размеры, возможно, придется обновить и скорректировать, если ваши планы этажей включают зону ожидания или бар. Однако эти пробелы должны быть приблизительными процентами для площади.
Общие правила вместимости, которые вы должны применять к плану вашего ресторана, предусматривают:
Ваша эстетическая концепция может быть расширена на открытом воздухе с применением того же стиля планировки и надлежащих рекомендаций по планированию пространства, как показано на этой диаграмме ниже: официанты избегают столкновения с зонтиком. Кроме того, широкие проходы и проходы, которые проходят рядом с растениями, также должны быть включены в ваши планы планировки внутреннего дворика.